Skip to content
Back To Top
 

Properties

« »
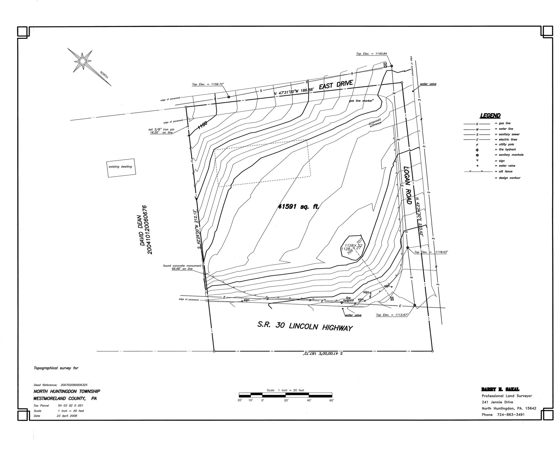
1019 Logan Road
Route 30 and Logan Hill Road
1019 Logan Road
North Versailles, PA 15137

Zoned commercial, approximately 1 acre available for a ground lease or build to suit.

Located within a five year 100% tax abatement zone for school, county and local taxes.

Intersection of Lincoln Highway (Route 30) and Logan Hill Road

Highlights

County: Allegheny
Type: Retail
Acres: 0.95

Vice President - Commercial Leasing

Joseph B. Hodson
301 Grant Street, Suite 1250
Pittsburgh, PA 15219
p.  412-288-7800

 

1019 Logan Road

  Available
  Coming Available
 
Available Spaces
1 41,382 SF Inline Space
 

1019 Logan Road

1019 Logan Road

  • View of property from across
  • Proposed Site Plan
  • View from property
  • View of intersection from property
 
 
Property Capsule Footer | Union Real Estate Skip to content
Back To Top